QJB型潛水攪拌機

  • 質量穩定:全程質量監控,細致入微,全方位檢測,保證產品質量!
  • 交貨快捷:先進生產流水線,備貨充足,常規產品全部倉庫現貨供應!
  • 專業定制:高級工程師專業選型報價,各種材質非標產品皆可洽談定做!
銷售熱線 023-68691718
  • 產品概述
  • 性能參數
  • 適用范圍
  • 安裝尺寸
  • 文檔下載



QJB型潛水攪拌機--產品概述

 

QJB型潛水攪拌機由潛水電機、葉槳和安裝系統等組成。根據傳動方式的不同,潛水攪拌機可分為:混合攪拌和低速推流兩大系列。 混合攪拌系列產品常選用多級電機,采用直聯式結構,它與傳統相比,具有結構緊湊、能耗低、效率高、便于維便于維護保養等優點。葉輪制造精度高、推力大。QJB型潛水攪拌機系列產品適用于需要固液攪拌、混合的場合。

 

QJB型潛水攪拌機--型號意義

 

 

QJB型潛水攪拌機--選型

 

為保證潛水攪拌機取得最佳運行效果,請使用方提供如下資料:

 

◎ 運用目的 ◎ 池型及尺寸,包括水深 ◎ 攪拌介質的特性,包括粘度、密度、溫度、及固體物含量等。

 

1、池型:池長×寬×高 水深; 

 

2、攪拌介質的特性、粘度、密度及固體物含量。



QJB型潛水攪拌機--性能特點

 

1、QJB型潛水攪拌機結構緊湊、操作維護簡單、安裝檢修方便、使用壽命長 

2、葉輪具有最佳的水力設計結構,工作效率高,后掠式葉片具有自潔功能可防雜物纏繞、堵塞。 

3、與曝氣系統混合使用可使能耗大幅度降低,充氧量明顯提高,有效防止沉淀。 

4、電機繞組絕緣等級為F級,防護等級為IP68,選用進口軸承和獨有專利的電機防凝露裝置,使電機的工作更加安全可靠。 

5、兩道機械密封,材質為碳化鎢-碳化鎢。所有外露緊固件均為不銹鋼。 


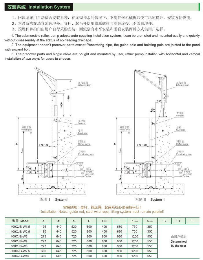
QJB型潛水攪拌機--安裝示意圖






潛水攪拌機適用于各種水處理工藝和工業流程需要保持固、液二相或固、液、氣三相介質均勻混合反應的場所。


 


潛水攪拌機可在下列條件下正常連續運行:


 


★ 最高介質溫度不超過40°C ★ 介質的PH值在5-9


 


★ 介質密度不超過1150KG/M^3 ★長期潛水運行,潛水深度一般不超過20米。




·相關產品
·相關文章
·最新文章